Casa Saarua loma-asunnot
Casa Saarua loma-asunnot
Upeat maisemat Valtavaaralle – rinteille ja palveluihin vain noin sata metriä
Saaruaan, Valtavaaran luonnonsuojelualueen ja Rukatunturin väliin, rakentuu ainutlaatuinen kokonaisuus korkeatasoisia Kontio-hirsihuviloita. Insinööritoimisto Hyppänen & Schrey Oy rakennuttaa alueelle kahdeksan tasokasta huvilaa, joissa yhdistyvät laadukas vapaa-ajan asuminen, huolella suunnitellut tilaratkaisut ja poikkeuksellinen sijainti Rukan tunturimaisemissa.
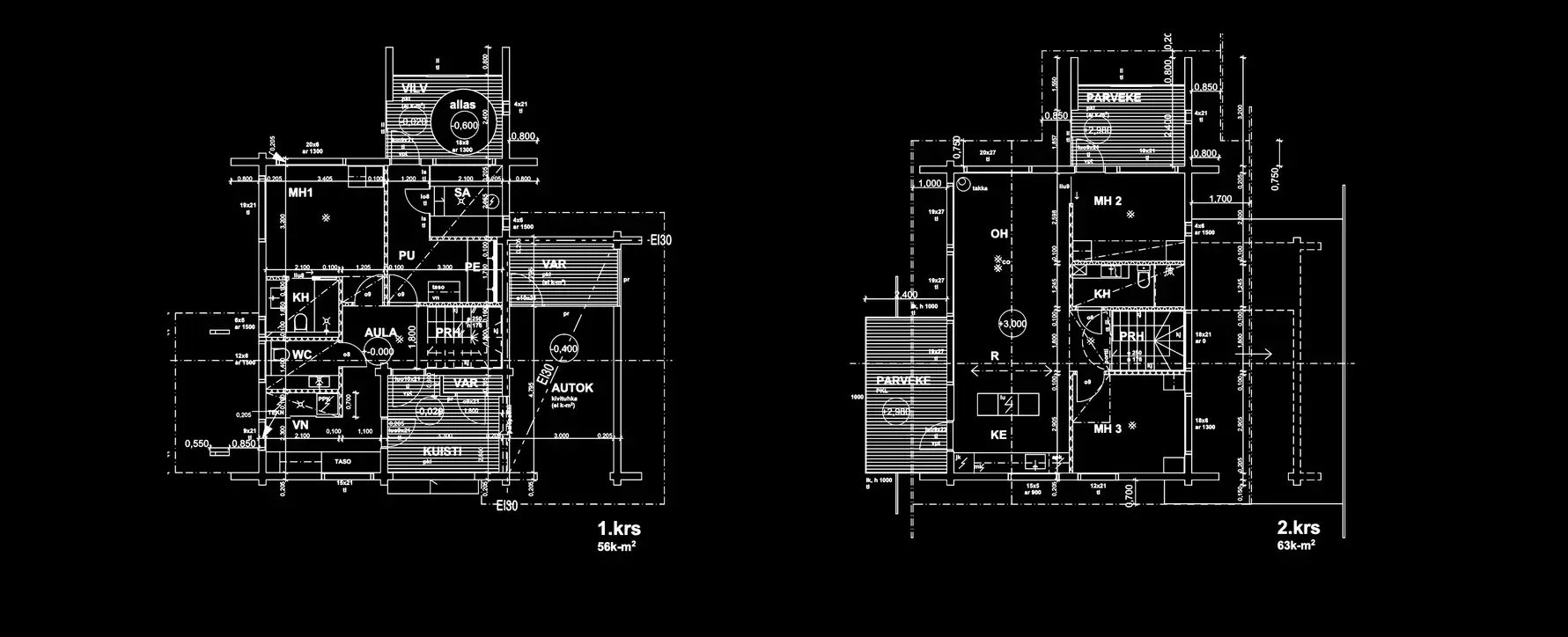
Huviloiden rakennusoikeudellinen kerrosala on 119 m², ja tilat on suunniteltu palvelemaan sekä omaa käyttöä että laadukasta vapaa-ajan viettoa perheen ja ystävien kanssa. Jokaisessa huvilassa on kolme makuuhuonetta, avara tupakeittiö, kaksi kylpyhuonetta, saunaosasto, erillinen wc sekä kaksi ulkovarastoa.
Kokonaisuuden viimeistelevät elämykselliset ulkotilat: toisen kerroksen lasitettu parveke ja avoparveke sekä saunaosaston yhteydessä sijaitseva lasitettu terassi, joka on varustettu porealtaalla. Näissä huviloissa luonto, maisema ja asumisen mukavuus kohtaavat tavalla, joka tekee vapaa-ajasta aidosti erityistä.
Ensimmäisten huviloiden rakentaminen käynnistyy vuonna 2026, ja niiden arvioidaan valmistuvan kesäksi 2027.
Myynti ja markkinointi
Voimakoski Oy
tuomas.joensuu@voimakoski.fi
Tutustu saaruan kylään
Havainnevideolla näet, kuinka eri huoneistot ja alueet istuvat kauniisti ympäröivään luontoon luoden upean kävelykylän tunnelman.
Huomioithan, että Saaruan kylän kohteiden suunnitelmat ovat alustavia ja Rukakeskus Oy varaa oikeuden kaikkiin muutoksiin. Suunnitelmia ja kuvia päivitetään tälle sivustolle ilman eri ilmoitusta.
Olen kiinnostunut, tahdon mukaan!
Saaruan alue kehittyy yhteistyöllä ja kuulemme mielellämme myös mielipiteesi suunnitelmista ja esimerkiksi huoneistojen alustavista pohjaratkaisuista.

